中古戸建て一覧CHUKO HOUSE
物件ID : TB-0008
中古物件【830万円】古民家住宅物件/矢板市片俣字屋敷前366番 他7筆
- 〜1000万円
- 栃木県央エリア
- ご成約済み

| 価格 | 830万円 |
|---|---|
| 土地面積 | 6855.11㎡(2073.67坪) | 建物面積 | - |
| 交通 | 矢板駅 約6Km 矢板IC 約9Km |
- おすすめ
ポイント -
家族でのびのびと暮らしたい方におすすめのお住まい。
部屋数が多く、広いお庭もあるため
お子さまの遊び場や家庭菜園としても活用できます。
家賃や購入費を抑えやすく
移住支援制度を活用すれば、より快適な住環境が整います。
古民家としての趣を活かし
民泊などの事業用物件としての活用も可能です。
自然に囲まれた環境の中で
家族の時間を大切にした暮らしを実現できます。
フォトギャラリー
物件概要
| 所在地 | 矢板市片俣字屋敷前366番 他7筆 | 物件ID | TB-0008 |
|---|---|---|---|
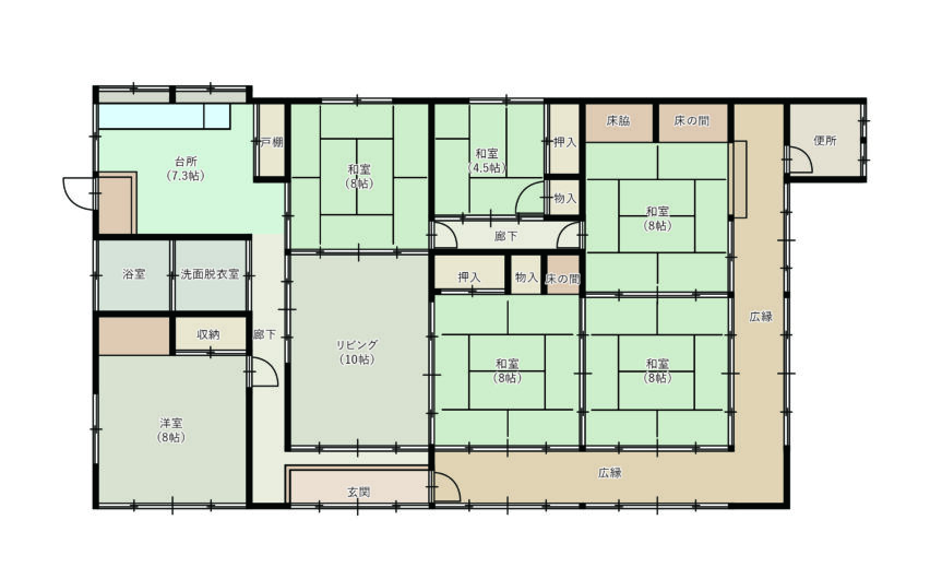
| 建築年月日 | 昭和52年12月 | 間取り | 7K |
| 物件区分 | 中古住宅 事業用用地 | 建ペイ率 | 60% |
| 敷地・建物権利 | 所有権 | 容積率 | 200% |
| 地目 | 宅地、田、畑、山林 | 接面道路 | 東南 公道 約4m |
| 私道負担 | 無 | 接面方位 | - |
| 都市計画 | 都市計画区域 非線引 | 取引形態 | 仲介 |
| 用途地域 | 無指定 | 仲介手数料 | 法定手数料 |
| 設備 | 公営水道・浄化槽・個別プロパン | ||
| 備考 | 農地法第3条許可要 | ||
| 地図 |
地図:中古売り物件/矢板市片俣字屋敷前366番 他6筆 (clickでGooglemapが起動します。) |
||
この物件について
お問合せする
その他のおすすめ物件
UD BRAND








